3-Zimmer-Wohnung

Erdgeschoss


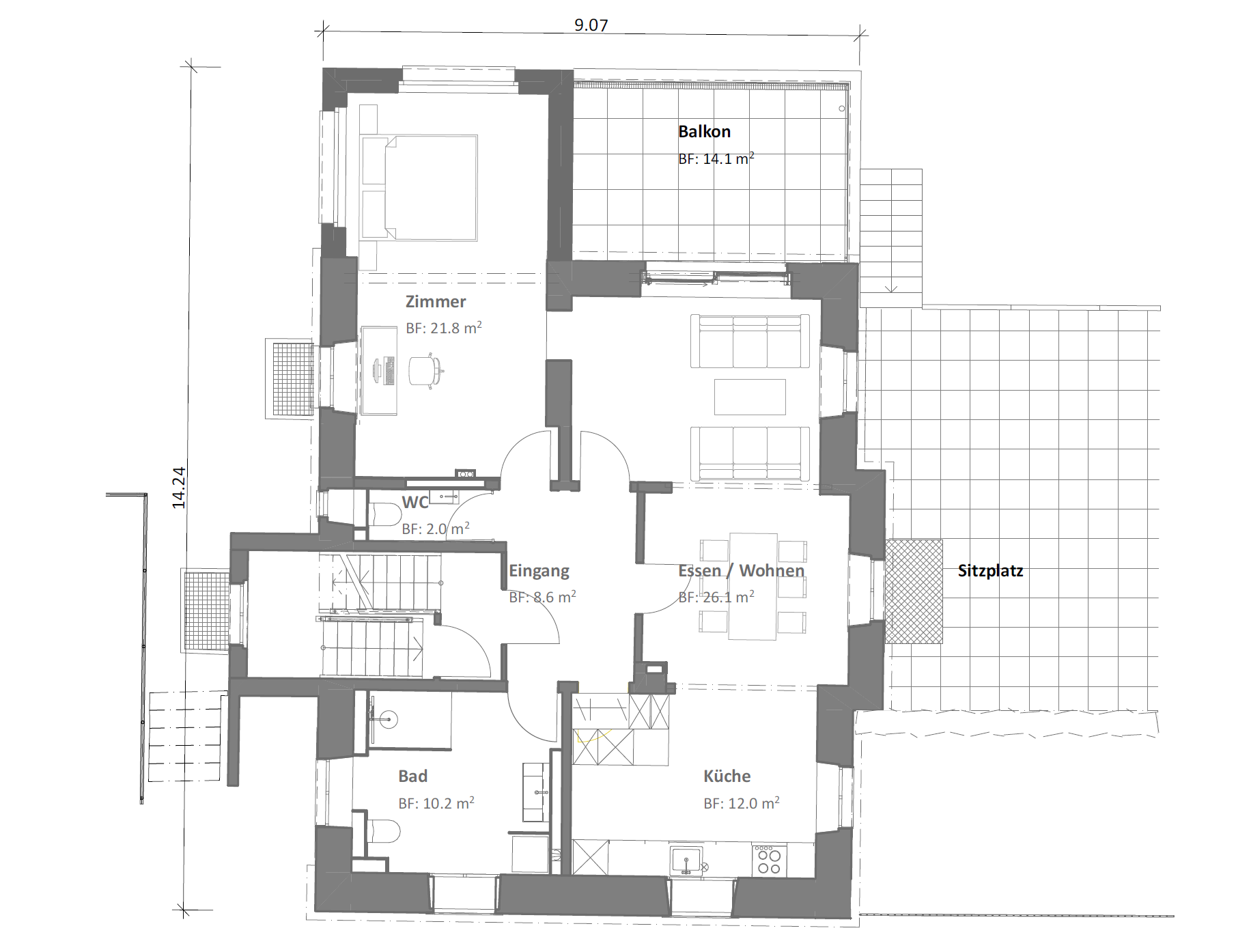
3-Zimmer-Wohnung im Erd-/Untergeschoss mit 80.7 m2 Wohnfläche, Balkon und grossem Sitzplatz sowie Keller im Untergeschoss

Netto-Mietzins: CHF 2'800.00, Akonto Nebenkosten: CHF 350.00, Brutto-Mietzins: CHF 3'150.00

Diese Wohnung besticht durch den grosszügigen Grundriss, die gekonnt in Szene gesetzten Jugendstil-Elemente aus dem Baujahr 1900, die sehr geräumige halboffene Küche mit grosser Arbeitsfläche (Granitabdeckung) und viel Stauraum, das moderne Badezimmer ausgestattet mit eigenem Waschturm sowie die zusätzliche Gästetoilette mit Mosaikplattenboden, helle geölte Eichen-Parkett-Böden in den übrigen Räumen, den Aussenbereich mit gedecktem Balkon sowie einen zusätzlichen grossflächigen Sitzplatz.

Ab Ende März 2026 kann ein Parkplatz auf dem Grundstück für CHF 100.00 dazu gemietet werden. Dieser wird unterhalb des Hauses mit Zufahrt über die Wannenthalstrasse erstellt.

Die Umgebungsgestaltung wird im Frühling 2026 fertiggestellt. Geplant ist die Pflanzung eines grossen Baumes auf der Westseite des Hauses, in dessen Schatten verweilt werden darf, Parkplätze entlang der Wannentalstrasse und Wiese rund um die befestigten Flächen.

Die Fotos zeigen den Ausbaustandard aller Wohnungen. Sie sind in der 3.5-Zimmer-Wohnung im 1. Obergeschoss vor Abschluss aller Sanierungsarbeiten aufgenommen worden.

Diese Webseite verwendet Cookies. Hier kannst du auswählen, welche Cookies du zulassen willst und deine Auswahl jederzeit ändern. Klickst du auf 'Akzeptieren', stimmst du der Verwendung von Cookies zu.